Drsno nagibne panoramske stene in okna zagotavljajo prezračevanje v načinu nagiba in ob enem omogočajo drsni način odpiranja. S tem prostori postanejo živi in se v njih lahko počutite udobno.
Sistemi drsno nagibnih panoramskih sten vam omogočajo zasteklitev do širine 400 cm. Uporabljamo jih na terasah, v dnevnih prostorih, spalnicah, zimskih vrtovovih,..
So prostorsko varčna in cenovno ugodnejša rešitev za panoramske zasteklitve, ki združujejo drsenje in nagibno zračenje tako za manjša okna, kot večje panoramske stene.
Izbirate lahko med izvedbo s PVC profili, PVC-ALU ali ALU profili nagibno drsnih panoramskih sten.
| Sestava stekla | Toplotna prehodnost stekla (Ug) | Toplotna prehodnost okna do (Uw) |
|---|---|---|
| 4-14-4-14-4 TGI | 0.6 W/m²K | 0.83 W/m²K |
| 4-18-4-18-4 TGI | 0.5 W/m²K | 0.76 W/m²K |

Načini izvedbe drsno nagibnih panoramskih sten
Drsno nagibna stena je narejena iz profilov Synego. Posebno zasnovano okovje zagotavlja nagibanje krila ter drsno odpiranje krila. Pri teh sistemih se krilo ob zapiranju tesno pritisne ob okvir, kar vam nudi odlično toplotno in zvočno izolacijo.Za doseganje večje trajnosti je PVC pohodni prag zaščiten z aluminijem.
Prednost drsno nagibnih panoramskih sten je, da ne zavzamejo veliko prostora in so cenejša varjanta kot dvižno drsne panoramske stene ali drsne (slide) stene.
Zato so primerne tudi za manjše in utesnjene prostore. Z nagibnim načinom odpiranja omogočajo funkcijo prezračevanja, kar pri ostalih panoramskih stenah ni mogoče.
Nasvet pri izbiri panoramskih sten
Pri izbiri med drsno-nagibno (PSK) in dvižno-drsno (HS) steno gre predvsem za odločitev med nižjo ceno in vrhunskim udobjem. Tukaj so ključne razlike:
- Drsno-nagibna (PSK): Krilo se najprej nagne (kot pri oknu “na kip”), nato pa se izvleče iz ravnine in zdrsne ob fiksnem delu. Zahteva nekoliko več moči in pravilno zaporedje gibov z ročico.
- Dvižno-drsna (HS): Z zasukom ročke se krilo rahlo dvigne in s pomočjo kolesc izjemno lahkotno odpelje. Upravljanje je preprosto tudi pri zelo težkih krilih do 400kg.
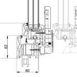
- Drsno-nagibna: Ima klasičen visok okvir spodaj (višina 82mm), čez katerega je treba stopiti. Ni primerna za prostore brez ovir.
- Dvižno-drsna: Omogoča vgradnjo nizkega ali celo potopljenega praga, kar ustvari raven prehod med notranjostjo in teraso.
- Drsno-nagibna: Primerna tudi za manjša okna in srednje odprtine običajno do širine 3–4 metre, okna so pa lahko tudi le 1m širine. Krila so lažja, saj bi težka krila preveč obremenila mehanizem. Vzdržljivost do 200kg.
- Dvižno-drsna: Idealna za velike panoramske površine (običajno med širinami 4-7m). Sistem mogoča ogromna krila, ki lahko tehtajo tudi do 400 kg, a se še vedno premikajo z enim prstom.
- Drsno-nagibna: Zaradi tesnil, ki se ob zapiranju stisnejo na vseh straneh, nudi odlično tesnjenje in zvočno izolacijo.
- Dvižno-drsna: Sistemi tesnijo vrhunsko, vendar so zaradi konstrukcije nizkega praga tehnološko zahtevnejši za doseganje enakih rezultatov v ekstremnih pogojih. Tesnenje in zvočna izolacija je malenkost slabša kot pri drsno-nagibnih oknih.
- Drsno-nagibna: Je bistveno ugodnejša izbira (tudi do 50 % cenejša od HS sistema), saj uporablja standardne profile oken zaradi katerega so možne tudi izdelave manjših drsno nagibnih oken, ne samo velikih panoramskih sten.
- Dvižno-drsna: Velja za premium rešitev z višjo ceno zaradi kompleksnega okovja in nizkih ravnih pragov.
Na voljo še ostale barve po RAL lestvici

















































